Parcul Carol | 3 camere | 125mp | Semidecomandat | B12302
380.000 €
Parcul Carol | 3 camere | 125mp | Semidecomandat | B12302
380.000 €
Caracteristici
Suprafata 88 mp
An 2015
Semidecomandat
Etaj 4 din 6
M 16 min.
Descriere
Pyf033B12302 Vanzare 3 camere
Pret: 380000 Euro
Zona: Parcul Carol, Bucuresti
Strada: Doctor Constantin Istrate
ID oferta: Pyf033B12302
Acasa incepe cu un sentiment.......Poate fi o lumina calda intr-o dupa-amiaza linistita, un balcon cu vedere sau o bucatarie unde iti savurezi cafeaua de dimineata.
Imagineaza-ti locuinta perfecta, care reflecta personalitatea ta si raspunde nevoilor tale zilnice.
Echipa PYF REAL ESTATE te ajuta sa gasesti acel loc special pe care il poti numi acasa. Portofoliul nostru cuprinde proprietati atent selectate, ideale pentru tine si familia ta.
Localizare:
Parcul Carol - (Academia tehniciana militara), una dintre cele mai cautate zone din Bucuresti, cu acces rapid la mijloace de transport in comun (metrou, autobuz, zona comerciala, banca, supermarket, trafic pietonal, benzinarie, piata, hotel, parc, restaurant/pub, scoala/gradinita), scoli, magazine, parcuri si centre comerciale.
Detalii proprietate:
Tip locuinta: Apartamente
Tip operatiune: vanzare
Numar camere: 3 camere (2 dormitoare)
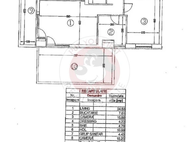
Suprafata utila: 88 mp
Suprafata totala: 125 mp
Etaj: 4 / 6
Compartimentare: semidecomandat
Confort: 1
An constructie : 2015
An renovare : 2022
Tip imobil: bloc mixt
Incalzire : centrala imobil
Dotari: calorifere: da; ferestre: pvc; incalzire: centrala imobil; pereti: faianta, var/huma; podele: parchet, gresie; usa intrare: metal
Bai: 2
Balcoane: 0
Terase: 2 (37 mp)
Bucatarii: 1 (da, mobilata, utilata, deschisa )
Finisaje: calorifere: da; ferestre: pvc; incalzire: centrala imobil; pereti: faianta, var/huma; podele: parchet, gresie; usa intrare: metal
Mobilare : complet mobilat
Podele: parchet, gresie | Pereti: faianta, var/huma | Ferestre: pvc
Stare generala: Stare excelenta
Usa intrare: metal
Vedere: mixta
Destinatie: locuinta, birou
Acces rapid la mijloace de transport in comun (metrou: [Tineretului-450m], autobuze: [116-400m], tramvaie: [19-400m])
In apropiere: [Mega Image-50m, Carrefour-250, Colegiul National Gheorghe Sincai-350m, Farmacia Catena-400m, Parcul Tineretului-350m, Parcul Carol-300m]
Parcare: garaj subteran (2 locuri)
Apartamente pe palier: 4
Siguranta: interfon - interfon, lift - lift
Izolatii: exterior, interior
Agent responsabil: Mihai P.
Important de stiut:
Vizionarile se realizeaza in baza unui contract de prestari servicii, semnat intre client si agentie. Este necesara prezentarea unui act de identitate. Neprezentarea acestuia poate duce la anularea sau neprogramarea vizionarii.
Se percepe comision din partea cumparatorului conform politicii Pyf Real Estate
Din cauza numarului mare de oferte si a fluctuatiei pietei imobiliare informatiile din oferta pot suferi modificari atat in sens apreciativ, cat si in sens depreciativ, de asemenea, este posibil sa nu mai fie de actualitate la momentul prezentarii. Pentru clarificarea acestor aspecte va rugam solicitati actualizarea ofertei/ ofertelor dorite!
Alege PYF REAL ESTATE - partenerul tau de incredere in imobiliare.
Transforma visul tau in realitate - contacteaza-ne acum!
Pret: 380000 Euro
Zona: Parcul Carol, Bucuresti
Strada: Doctor Constantin Istrate
ID oferta: Pyf033B12302
Acasa incepe cu un sentiment.......Poate fi o lumina calda intr-o dupa-amiaza linistita, un balcon cu vedere sau o bucatarie unde iti savurezi cafeaua de dimineata.
Imagineaza-ti locuinta perfecta, care reflecta personalitatea ta si raspunde nevoilor tale zilnice.
Echipa PYF REAL ESTATE te ajuta sa gasesti acel loc special pe care il poti numi acasa. Portofoliul nostru cuprinde proprietati atent selectate, ideale pentru tine si familia ta.
Localizare:
Parcul Carol - (Academia tehniciana militara), una dintre cele mai cautate zone din Bucuresti, cu acces rapid la mijloace de transport in comun (metrou, autobuz, zona comerciala, banca, supermarket, trafic pietonal, benzinarie, piata, hotel, parc, restaurant/pub, scoala/gradinita), scoli, magazine, parcuri si centre comerciale.
Detalii proprietate:
Tip locuinta: Apartamente
Tip operatiune: vanzare
Numar camere: 3 camere (2 dormitoare)
Suprafata utila: 88 mp
Suprafata totala: 125 mp
Etaj: 4 / 6
Compartimentare: semidecomandat
Confort: 1
An constructie : 2015
An renovare : 2022
Tip imobil: bloc mixt
Incalzire : centrala imobil
Dotari: calorifere: da; ferestre: pvc; incalzire: centrala imobil; pereti: faianta, var/huma; podele: parchet, gresie; usa intrare: metal
Bai: 2
Balcoane: 0
Terase: 2 (37 mp)
Bucatarii: 1 (da, mobilata, utilata, deschisa )
Finisaje: calorifere: da; ferestre: pvc; incalzire: centrala imobil; pereti: faianta, var/huma; podele: parchet, gresie; usa intrare: metal
Mobilare : complet mobilat
Podele: parchet, gresie | Pereti: faianta, var/huma | Ferestre: pvc
Stare generala: Stare excelenta
Usa intrare: metal
Vedere: mixta
Destinatie: locuinta, birou
Acces rapid la mijloace de transport in comun (metrou: [Tineretului-450m], autobuze: [116-400m], tramvaie: [19-400m])
In apropiere: [Mega Image-50m, Carrefour-250, Colegiul National Gheorghe Sincai-350m, Farmacia Catena-400m, Parcul Tineretului-350m, Parcul Carol-300m]
Parcare: garaj subteran (2 locuri)
Apartamente pe palier: 4
Siguranta: interfon - interfon, lift - lift
Izolatii: exterior, interior
Agent responsabil: Mihai P.
Important de stiut:
Vizionarile se realizeaza in baza unui contract de prestari servicii, semnat intre client si agentie. Este necesara prezentarea unui act de identitate. Neprezentarea acestuia poate duce la anularea sau neprogramarea vizionarii.
Se percepe comision din partea cumparatorului conform politicii Pyf Real Estate
Din cauza numarului mare de oferte si a fluctuatiei pietei imobiliare informatiile din oferta pot suferi modificari atat in sens apreciativ, cat si in sens depreciativ, de asemenea, este posibil sa nu mai fie de actualitate la momentul prezentarii. Pentru clarificarea acestor aspecte va rugam solicitati actualizarea ofertei/ ofertelor dorite!
Alege PYF REAL ESTATE - partenerul tau de incredere in imobiliare.
Transforma visul tau in realitate - contacteaza-ne acum!
1.283 vizualizari
Bucuresti, Publicat 15 Decembrie '25
Actualizat 03 Ianuarie '26
Actualizat 03 Ianuarie '26
Statii metrou
| Tineretului | 16 min | |
| Eroii Revoluției | 18 min | |
| Timpuri Noi | 27 min |
Statii STB
| 1 116 , 323 | Cuțitul de Argint | 9 min |
| 1 116 , 323 | Adesgo | 9 min |
| Autogara Filaret | 9 min |
Evolutia preturilor imobiliare in Unirii
se incarca..
