Birou Pozitie Excelenta Piata Romana Calea Victoriei
1.398 €
Birou Pozitie Excelenta Piata Romana Calea Victoriei
1.398 €
Caracteristici
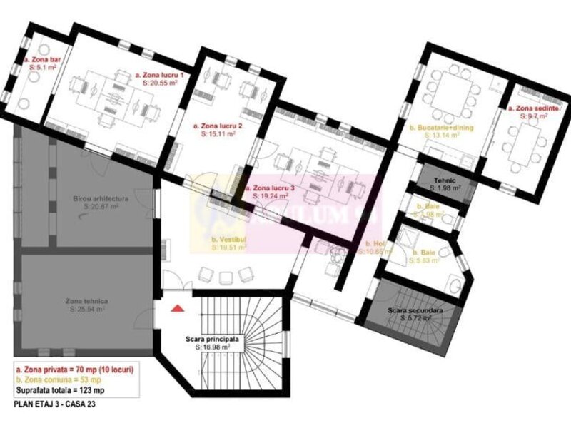
Suprafata utila 123 mp
Birouri
M 7 min.
Descriere
**Birou modern, complet mobilat – ultracentral, Str. George Enescu .
Priveliste catre Ateneu • 123 mp utili • Prima inchiriere**
Ofer spre inchiriere un birou modern si luminos, situat ultracentral, intr-o vila interbelica consolidata, pe Strada George Spatiul se afla la etajul 3 si beneficiaza de o priveliste spectaculoasa catre Ateneu si Piata Romana.
Localizare premium
La doar cativa pasi de Piata Romana si Calea Victoriei, spatiul ofera acces rapid catre toate zonele centrale ale Bucurestiului.
Metrou: 2 minute
Statie de autobuz: la scara
Zona este una dintre cele mai cautate pentru sedii de firme, datorita proximitatii fata de institutii, ambasade, banci, restaurante si cafenele.
Descrierea spatiului
Spatiul are 123 mp utili, organizati intr-un mix de open-space si birouri individuale, perfect pentru echipe care au nevoie atat de zone comune, cat si de camere dedicate intalnirilor si activitatii concentrate.
Compartimentare:
4 incaperi principale de lucru:
Camera 1: 4 posturi (extensibil pana la 6)
Camera 2: 2 posturi (extensibil pana la 4)
Camera 3: 4 posturi / birou director / camera de sedinte
Camera 4: Sala de sedinte cu 6 locuri
Capacitate totala: pana la 10 posturi de lucru
Zona de primire
Lounge cu vedere catre Ateneu si Piata Romana
Bucatarie complet utilata (frigider, cuptor cu microunde, espressor, filtru de apa, masa de 10 persoane)
2 bai moderne, una dotata cu dus
Spatiul este impartit in:
70 mp zona privata de lucru/sedinte – utilizare exclusiva
53 mp zona comuna, impartita cu biroul de arhitectura al proprietarului (vestibul, bucatarie, bai)
Cladire:
Structura rezistenta: caramida + beton
Suprafata construita: 180 mp
2 cai de acces
Dotari & avantaje
Mobilier nou IKEA: scaune Markus, birouri Trotten, rafturi depozitare
Aer conditionat
Centrala proprie pe gaz
Finisaje moderne: parchet stratificat, usi din lemn
Camera de supraveghere
Acces internet prin cablu si fibra optica
Spatiu complet mobilat si utilat – gata pentru mutare imediata
Prima inchiriere
Conditii contractuale
1 luna chirie
1 luna garantie
Comision 50%.
Un spatiu reprezentativ, luminos si elegant, ideal pentru firme care isi doresc vizibilitate, accesibilitate si un mediu profesionist chiar in inima orasului.
Daca iti doresti un sediu central care imbina prestigiul zonei cu confortul si functionalitatea, contacteaza-ne pentru detalii si programeaza o vizionare.
Priveliste catre Ateneu • 123 mp utili • Prima inchiriere**
Ofer spre inchiriere un birou modern si luminos, situat ultracentral, intr-o vila interbelica consolidata, pe Strada George Spatiul se afla la etajul 3 si beneficiaza de o priveliste spectaculoasa catre Ateneu si Piata Romana.
Localizare premium
La doar cativa pasi de Piata Romana si Calea Victoriei, spatiul ofera acces rapid catre toate zonele centrale ale Bucurestiului.
Metrou: 2 minute
Statie de autobuz: la scara
Zona este una dintre cele mai cautate pentru sedii de firme, datorita proximitatii fata de institutii, ambasade, banci, restaurante si cafenele.
Descrierea spatiului
Spatiul are 123 mp utili, organizati intr-un mix de open-space si birouri individuale, perfect pentru echipe care au nevoie atat de zone comune, cat si de camere dedicate intalnirilor si activitatii concentrate.
Compartimentare:
4 incaperi principale de lucru:
Camera 1: 4 posturi (extensibil pana la 6)
Camera 2: 2 posturi (extensibil pana la 4)
Camera 3: 4 posturi / birou director / camera de sedinte
Camera 4: Sala de sedinte cu 6 locuri
Capacitate totala: pana la 10 posturi de lucru
Zona de primire
Lounge cu vedere catre Ateneu si Piata Romana
Bucatarie complet utilata (frigider, cuptor cu microunde, espressor, filtru de apa, masa de 10 persoane)
2 bai moderne, una dotata cu dus
Spatiul este impartit in:
70 mp zona privata de lucru/sedinte – utilizare exclusiva
53 mp zona comuna, impartita cu biroul de arhitectura al proprietarului (vestibul, bucatarie, bai)
Cladire:
Structura rezistenta: caramida + beton
Suprafata construita: 180 mp
2 cai de acces
Dotari & avantaje
Mobilier nou IKEA: scaune Markus, birouri Trotten, rafturi depozitare
Aer conditionat
Centrala proprie pe gaz
Finisaje moderne: parchet stratificat, usi din lemn
Camera de supraveghere
Acces internet prin cablu si fibra optica
Spatiu complet mobilat si utilat – gata pentru mutare imediata
Prima inchiriere
Conditii contractuale
1 luna chirie
1 luna garantie
Comision 50%.
Un spatiu reprezentativ, luminos si elegant, ideal pentru firme care isi doresc vizibilitate, accesibilitate si un mediu profesionist chiar in inima orasului.
Daca iti doresti un sediu central care imbina prestigiul zonei cu confortul si functionalitatea, contacteaza-ne pentru detalii si programeaza o vizionare.
Cod oferta: 2853671

3.475 vizualizari
Bucuresti, 30 Ianuarie '26
Actualizat 12 Decembrie '25
Actualizat 12 Decembrie '25
Statii metrou
| Piața Romană | 7 min | |
| Strada Batiștei | 13 min | |
| Teatrul Național | 15 min |
Statii STB
| 126 , 300 , 368 | Nicolae Golescu | 3 min |
| 79 , 86 , 97 126 , 168 , 226 , 300 , 301 , 331 , 368 , 381 , 783 | Piața Romană | 6 min |
| 122 , 137 , 138 , 268 , 311 | Bd. Nicolae Bălcescu | 8 min |
| 79 , 86 , 97 | Calea Dorobanților | 8 min |
| Calea Griviței | 8 min | |
| 131 , 301 , 331 | A.S.E. | 8 min |
| 79 , 86 , 97 | Colegiul Economic Virgil Madgearu | 9 min |
| Piața Alexandru Lahovari | 10 min |
<img src="https://apulum-94.crmrebs.com/track/15/2853671.gif" />
