Casa visurilor tale exact asa cum ti-ai imaginat 140 mp - 750 mp teren
130.000 €
Casa visurilor tale exact asa cum ti-ai imaginat 140 mp - 750 mp teren
130.000 €
Caracteristici
Suprafata utila 140 mp
Teren 750 mp
An 2025
4 camere
In constructie
Optiuni interior: 2+ gr. sanitare Alimentare apa Canalizare Centrala termica Dressing Fosa septica Gaze Izolatie termica Living Terasa
Optiuni exterior: Curte amenajata Gradina Porti electrice
Optiuni interior: 2+ gr. sanitare Alimentare apa Canalizare Centrala termica Dressing Fosa septica Gaze Izolatie termica Living Terasa
Optiuni exterior: Curte amenajata Gradina Porti electrice
Descriere
Comision 0%!
De vanzare o casa individuala pe parter, aflata in constructie, cu parterul finalizat la rosu, situata intr-o zona exceptionala din Ghermanesti – Snagov, apreciata pentru liniste, aer curat si acces rapid catre Bucuresti.
Constructie solida, realizata cu accent pe calitate, folosind materiale premium, gandita pentru confort pe termen lung si eficienta.
Detalii proprietate:
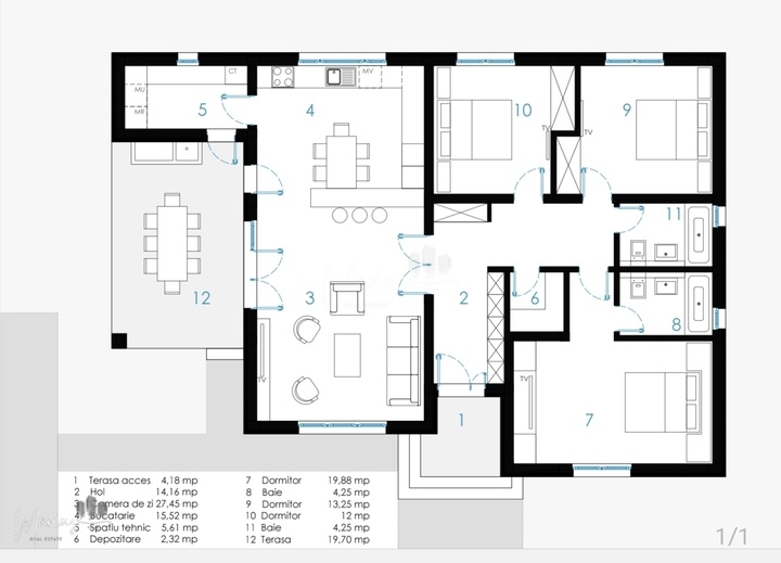
Suprafata utila: 140 mp
Suprafata teren: 750 mp
Regim de inaltime: Parter
Stadiu: La rosu (parter finalizat)
Structura: Caramida
Utilitati: Gaze, canalizare, curent normal+ curent trifazic, put, fosa
Avantaje cheie:
- Suprafete generoase, compartimentare eficienta - camera tehnica, dormitor matrimonial cu baie proprie, regim mare de inaltime al camerelor, bucatarie inchisa/deschisa, placa peste parter
-Teren mare – ideal pentru gradina, terasa, piscina ( 750 mp + cota parte din drumul privat de acces)
- Casa pe parter – confort si accesibilitate
- Zona linistita, verde, aproape de padure, aer curat, constructii noi de jur imprejur
- Acces facil catre DN1 si Bucuresti
- Constructie realizata cu materiale de calitate superioara - prezentam la cerere Cartea tehnica a imobilului
Personalizare completa:
Casa poate fi finalizata la cheie, intr-un termen de 3–4 luni, exact dupa dorintele viitorului proprietar (finisaje, design, compartimentare).
Pret:
- 130.000 € – in stadiul actual (la rosu)
Pret final negociabil in functie de nivelul de finisare ales.
O casa construita corect, pe un teren mare, intr-o zona excelenta, la un pret foarte bun in aceasta etapa.
Nu cumperi doar o casa, ci posibilitatea de a o finaliza exact cum iti doresti.
La cumpararea acestui imobil NU se plateste comision. Comision 0%!
Acest imobil apartine in exclusivitate Agentiei Marius Team membra a General Finance Group
De vanzare o casa individuala pe parter, aflata in constructie, cu parterul finalizat la rosu, situata intr-o zona exceptionala din Ghermanesti – Snagov, apreciata pentru liniste, aer curat si acces rapid catre Bucuresti.
Constructie solida, realizata cu accent pe calitate, folosind materiale premium, gandita pentru confort pe termen lung si eficienta.
Detalii proprietate:
Suprafata utila: 140 mp
Suprafata teren: 750 mp
Regim de inaltime: Parter
Stadiu: La rosu (parter finalizat)
Structura: Caramida
Utilitati: Gaze, canalizare, curent normal+ curent trifazic, put, fosa
Avantaje cheie:
- Suprafete generoase, compartimentare eficienta - camera tehnica, dormitor matrimonial cu baie proprie, regim mare de inaltime al camerelor, bucatarie inchisa/deschisa, placa peste parter
-Teren mare – ideal pentru gradina, terasa, piscina ( 750 mp + cota parte din drumul privat de acces)
- Casa pe parter – confort si accesibilitate
- Zona linistita, verde, aproape de padure, aer curat, constructii noi de jur imprejur
- Acces facil catre DN1 si Bucuresti
- Constructie realizata cu materiale de calitate superioara - prezentam la cerere Cartea tehnica a imobilului
Personalizare completa:
Casa poate fi finalizata la cheie, intr-un termen de 3–4 luni, exact dupa dorintele viitorului proprietar (finisaje, design, compartimentare).
Pret:
- 130.000 € – in stadiul actual (la rosu)
Pret final negociabil in functie de nivelul de finisare ales.
O casa construita corect, pe un teren mare, intr-o zona excelenta, la un pret foarte bun in aceasta etapa.
Nu cumperi doar o casa, ci posibilitatea de a o finaliza exact cum iti doresti.
La cumpararea acestui imobil NU se plateste comision. Comision 0%!
Acest imobil apartine in exclusivitate Agentiei Marius Team membra a General Finance Group
21 vizualizari
Ilfov, Snagov, Publicat azi; 00:56
Actualizat azi; 00:56
Actualizat azi; 00:56
