Campina, PH, Parc central Milia, Bdul Carol, spatiu comercial ultracentral
690.000 €
Campina, PH, Parc central Milia, Bdul Carol, spatiu comercial ultracentral,
690.000 €
Caracteristici
Suprafata utila 1.043 mp
Sp. comercial
Detalii Suplimentare: Apa centrala termica curent electric Gaze Grup sanitar Internet Parcare Vad comercial Vitrina stradala
Detalii Suplimentare: Apa centrala termica curent electric Gaze Grup sanitar Internet Parcare Vad comercial Vitrina stradala
Descriere
Spatiul comercial are o pozitie deosebita, ultracentrala, in zona cu magazine, restaurante, banci, parcuri, la aprox 70 m fata de Bdul Carol I si parcul central Milia (parcul Regele Mihai I), aprox. 130 m fata de banca BCR si banca Transilvania, aprox. 100 m fata de politie si primaria Campina.
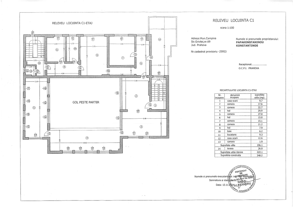
Constructia finalizata in 1970, se afla la intersectia Bdul Culturii cu Str. Grivitei, nr. 69, cu acces auto si pietonal pe doua laturi, cu diverse facilitati de investitii, modernizare si dezvoltare.
Parcari auto: in interiorul proprietatii, peste 12 masini, cu posibilitate si in exteriorul proprietatii.
Supraf. teren curti constr.: 1.115 mp;
Supraf. constr. la sol: 586 mp;
Supraf. constr. desfasurata: 1.043 mp (subsol, parter, etaj, mansarda)
Compartimentare constr.: total 16 camere
• 28 mp subsol: 1 beci
• 586 mp parter: 5 camere, 1 salon, 2 casa scarii, 2 oficii, 4 grupuri sanitare,
2 holuri, 2 terase, 2 antreu, 2 sas;
• 348 mp etaj: 6 camere, 3 holuri, 1 baie, 1 casa scarii;
• 80 mp mansarda: 1 camera, 1 hol.
• 380 mp pod 1
• 180 mp pod 2
Structura: fundatie, stalpi, si plansee beton, pereti din caramida, acoperis lemn, invelitoare tabla;
Utilitati: energie electrica, apa, gaze naturale, canalizare, internet;
Incalzire mixta: centrala proprie pe gaze naturale, calorifere, sobe combustibil solid, radiatoare electrice;
Pret 690.000 EUR (662 EUR / mp construit).
LOCATIE GOOGLE MAPS:
https://maps.app.goo.gl/oUzG8jEgdNEJSZxZA
45.125317, 25.732371
Constructia finalizata in 1970, se afla la intersectia Bdul Culturii cu Str. Grivitei, nr. 69, cu acces auto si pietonal pe doua laturi, cu diverse facilitati de investitii, modernizare si dezvoltare.
Parcari auto: in interiorul proprietatii, peste 12 masini, cu posibilitate si in exteriorul proprietatii.
Supraf. teren curti constr.: 1.115 mp;
Supraf. constr. la sol: 586 mp;
Supraf. constr. desfasurata: 1.043 mp (subsol, parter, etaj, mansarda)
Compartimentare constr.: total 16 camere
• 28 mp subsol: 1 beci
• 586 mp parter: 5 camere, 1 salon, 2 casa scarii, 2 oficii, 4 grupuri sanitare,
2 holuri, 2 terase, 2 antreu, 2 sas;
• 348 mp etaj: 6 camere, 3 holuri, 1 baie, 1 casa scarii;
• 80 mp mansarda: 1 camera, 1 hol.
• 380 mp pod 1
• 180 mp pod 2
Structura: fundatie, stalpi, si plansee beton, pereti din caramida, acoperis lemn, invelitoare tabla;
Utilitati: energie electrica, apa, gaze naturale, canalizare, internet;
Incalzire mixta: centrala proprie pe gaze naturale, calorifere, sobe combustibil solid, radiatoare electrice;
Pret 690.000 EUR (662 EUR / mp construit).
LOCATIE GOOGLE MAPS:
https://maps.app.goo.gl/oUzG8jEgdNEJSZxZA
45.125317, 25.732371
38 vizualizari
Prahova, Campina, azi; 18:25
Actualizat azi; 18:25
Actualizat azi; 18:25
